Company Logo
My Counselor HomeFinder Get New Listings Emailed Daily! SIGN UP LOGIN

1941 Bud Road, Windom, MN 56101

4 Total Photos [Click to View All]

Listed By

Agency Name: Five Star Realty Pros LLC
Agency Phone: 507-832-8100

Shown By

Agency Title: Counselor Realty
Agency Phone:

IDX logo

Property Description

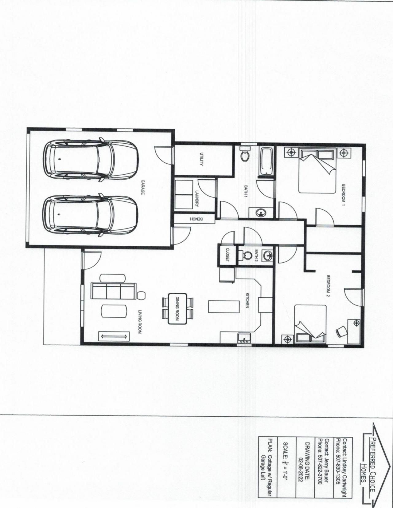
TO BE BUILT! Gove acres is a new 55 plus community development. This will be a 2 bedroom, 2 bath, home! No basements to be concerned with. Double attached garage. You will walk into an open concept living, dining and kitchen setting. The 2 bedrooms are in the back of the townhome. The main bedroom has a walk-in closet. You will also find 1.5 baths and a separate laundry room. The utility room is accessed from the garage. Enjoy the great outdoor on your covered patio and a back deck. Personalize your home with a great finishing options to choose from! Available to you will be a community Clubhouse for special events or just a friendly game of cards. The Windom hospital walking path is also close by. RELAX with all the comforts of living in a planned community with neighbors 55 plus, all yard maintenance taken care of by property management and a wonderful clubhouse provides an entertainment area for you to use for groups small or large.

1941 Bud Road | MLS# 6154391

This single family home located at 1941 Bud Road, Windom, MN 56101 is currently listed for sale with an asking price of $279,900. This property was built in 2022 and has 2 bedrooms and 1 full and 1 partial baths with 1246 sq. ft. Bud Road is located in the Gove Acres subdivision within the Windom school district. Search Gove Acres real estate on www.counselorrealty.com today.

Property Features

Property Type: Residential - Single Family
Basement: Crawl Space
Cooling: Central Air
Fuel Type: Natural Gas
Garage: 2 car attached
Heating: Forced Air
Lot Size: 0.12 Acres
Roof Type: Asphalt, Pitched
Stories: 1.0
Taxes: $3,200
Year Built: 2022

Feature Descriptions

Additional Living Info.: All Living Facilities on One Level, Main Floor Bedroom, Main Floor Laundry
Appliances: Electric Water Heater, Water Softener Owned
Bath: Main Floor 1/2 Bath, Main Floor Full Bath
Bathrooms Full: 1
Bathrooms Half: 1
Days on Site: 1522
Dining: Informal Dining Room, Living/Dining Room
Down Payment Resource: Yes
Foundation Size: 1246
HOA Fee: $175/ Monthly
Lot: Tree Coverage - Light, Underground Utilities
Lot Dimensions: 45.99x111.73
Parcel#: 253201600
Parking: Attached Garage, Concrete, Electric, Garage Door Opener
Sewer: City Sewer/Connected
Water: City Water/Connected

Room Sizes

Dining Room: 10x16
Bedroom: 13x14
Kitchen: 9x13
Living Room: 12x16
Bedroom 2: 12x14

Local Schools

School District: Windom

Estimate Your Payment

Estimated Payment

$ 1,838.05 per month $1,489.75 Principal & Interest $266.67 Property Tax $81.64 Homeowner's Insurance

Change Payment Information

%
years/fixed
yearly
yearly (est.)
(Payments are an estimate and may vary by lender)

Near By

Demographics

Login to My Homefinder

Pixel